
solgt






solgt
Oksbølvej 28, 4600 Køge
FLOT RUMMELIG 1-PLANS KVALITETS VILLA FRA 2004
· SUPER PLANLØSNING
·
· PERFEKT FAMILIEVILLA
·
· STORE SOLRIGE TERRASSEMILJØER
·
· EFTERTRAGTET BØRNEVENLIGT KVARTER
·
· INDFLYTNINGSKLAR
Villaen på Oksbølvej 28 er opført i 2004 efter alle kunstens regler. Indrettet med
kvalitetsmaterialer, med optimal udnyttelse af pladsen og med fokus på de naturlige lysindfald,
det gode indeklima og fantastiske muligheder for at integrere de skønne udemiljøer med boligen
i de varme måneder.
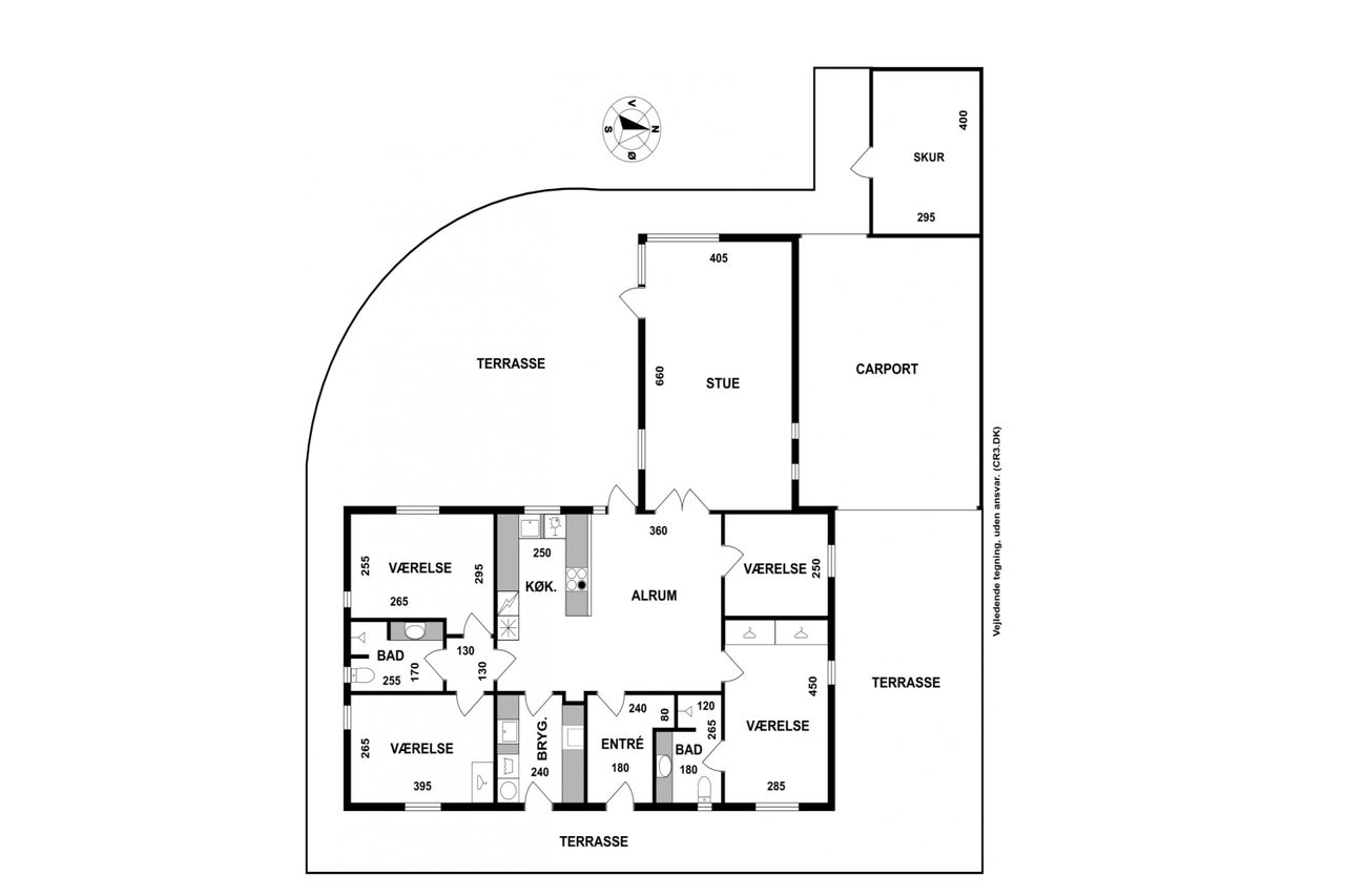
Indenfor er pladsen fordelt over forældreafdeling, hvor et godt værelse med skabsvæg og
adgang til eget badeværelse i husets ene ende, og en afdeling med to værelser og eget bad i
husets modsatte ende, for den perfekte afdeling til de store børn. Huset rummer desuden et
fjerde værelse, oplagt til det mindste barn, eller måske hjemmekontoret. Her er rummeligt
bryggers, god entré og store, lækre fællesrum i form af alrum og stue, begge med direkte
udgang til den store terrasse, der er etableret rundt om huset.
Huset er indrettet i et gennemgående lyst og moderne udtryk og fremstår fuldkommen
indflytningsklart.
Haven er nem, solrig og velholdt. Her er det store terrassemiljø det oplagte samlingssted om
sommeren. Her kan I finde skygge under den store markise og sætte langbord op til sommerens
selskaber. Foran huset er der etableret en stor indkørsel med plads til flere biler.
Huset er beliggende højt for området med masser af aftensol i haven og udsigt over Åsen. Her
få minutters gang af stisystem til skole og få minutters kørsel til både centrum, motorvej, strand,
svømmehal, indkøbscenter og meget, meget mere.
Vi glæder os til at vise jer rundt.
· SUPER PLANLØSNING
·
· PERFEKT FAMILIEVILLA
·
· STORE SOLRIGE TERRASSEMILJØER
·
· EFTERTRAGTET BØRNEVENLIGT KVARTER
·
· INDFLYTNINGSKLAR
Villaen på Oksbølvej 28 er opført i 2004 efter alle kunstens regler. Indrettet med
kvalitetsmaterialer, med optimal udnyttelse af pladsen og med fokus på de naturlige lysindfald,
det gode indeklima og fantastiske muligheder for at integrere de skønne udemiljøer med boligen
i de varme måneder.
Indenfor er pladsen fordelt over forældreafdeling, hvor et godt værelse med skabsvæg og
adgang til eget badeværelse i husets ene ende, og en afdeling med to værelser og eget bad i
husets modsatte ende, for den perfekte afdeling til de store børn. Huset rummer desuden et
fjerde værelse, oplagt til det mindste barn, eller måske hjemmekontoret. Her er rummeligt
bryggers, god entré og store, lækre fællesrum i form af alrum og stue, begge med direkte
udgang til den store terrasse, der er etableret rundt om huset.
Huset er indrettet i et gennemgående lyst og moderne udtryk og fremstår fuldkommen
indflytningsklart.
Haven er nem, solrig og velholdt. Her er det store terrassemiljø det oplagte samlingssted om
sommeren. Her kan I finde skygge under den store markise og sætte langbord op til sommerens
selskaber. Foran huset er der etableret en stor indkørsel med plads til flere biler.
Huset er beliggende højt for området med masser af aftensol i haven og udsigt over Åsen. Her
få minutters gang af stisystem til skole og få minutters kørsel til både centrum, motorvej, strand,
svømmehal, indkøbscenter og meget, meget mere.
Vi glæder os til at vise jer rundt.
Allan Folmer
Ejendomsmægler MDE & Valuar
Fandt du ikke hvad du søgte
Så opret dig her på siden med dine ønsker til en ny bolig.
Så optager vi dig i vores køberkartotek, så du er blandt de første der modtager materiale på nye boliger til salg, der matcher
dine ønsker. Du får en gratis online søge annoncering efter din drømme bolig og hører fra os når der er en ny bolig til dig.




